Peeling back the layers on upgrades to 19th Century coastal house
— 28 Sep 2023
The exposed location with stunning sea views

Layers of the summerhouse construction are exposed as the structure is built into the hillside

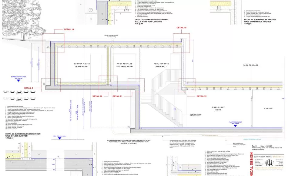
Technical designs for the summerhouse
Stonework cladding around the below ground storage area, with stair curving around external shower into the landscape

Slate hung wall - robust and beautiful

Lead detailing complements the slate
Location, location, location
Jonathan Rhind Architects were called in to gain planning permission for this historic property which commands an incredible spot on the north Devon coastline. Perched above the sea, the house is in an Area of Outstanding Natural Beauty, a Conservation area and a Site of Special Scientific Interest, and Jonathan Rhind Architects drew up plans and secured permission for the works to upgrade and extend the property to make it more sustainable and suitable for modern family living, whilst reducing the impact on the scenic landscape of the dramatic coastline.
When we blogged at the beginning of the year, works were just beginning. They are now in full swing, with slating of the main house extension roof, slate hanging of walls, construction of the summerhouse, and renovation of the swimming pool all ongoing. Contractors Heddon Mill Ltd are pushing forwards working on an exposed site which is lashed with salt laden winds. Director Architect Jonathan Rhind and Technologist Pete Thompson have made numerous trips to the site during the build to administer the contract and ensure works are progressing as planned.
One of the images taken by Pete, shows the construction of the summerhouse which is being built into the hillside, with the layers of the building on display. First the blockwork structural wall, then rigid insulation, a waterproofing membrane, and the reinforced concrete retaining wall all of which is enveloped in rubblestone to root the building into the hillside. Such technical detailing is essential to ensure the building will perform as expected, have longevity in hostile conditions and be a beautiful addition to the landscape.
As the new house extension takes shape, finishes such as the slate hung wall and lead window reveals, developed for the extreme weather conditions, are complemented by the robust detailing of the lead sill, and hint at how the completed building will balance with the landscaping elements such as the vertical rubblestone walls and stone pool terrace.
Check back for more updates as the build progresses through to completion.