Go ahead received for classical house on Dartmoor
— 08 Jan 2020
 
                       
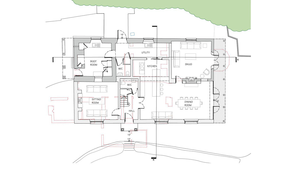
                         Proposed ground floor plan - open plan lounge/diner, crittall patio doors, reconfigured boot room and utility, drawing room and snug
 
                       
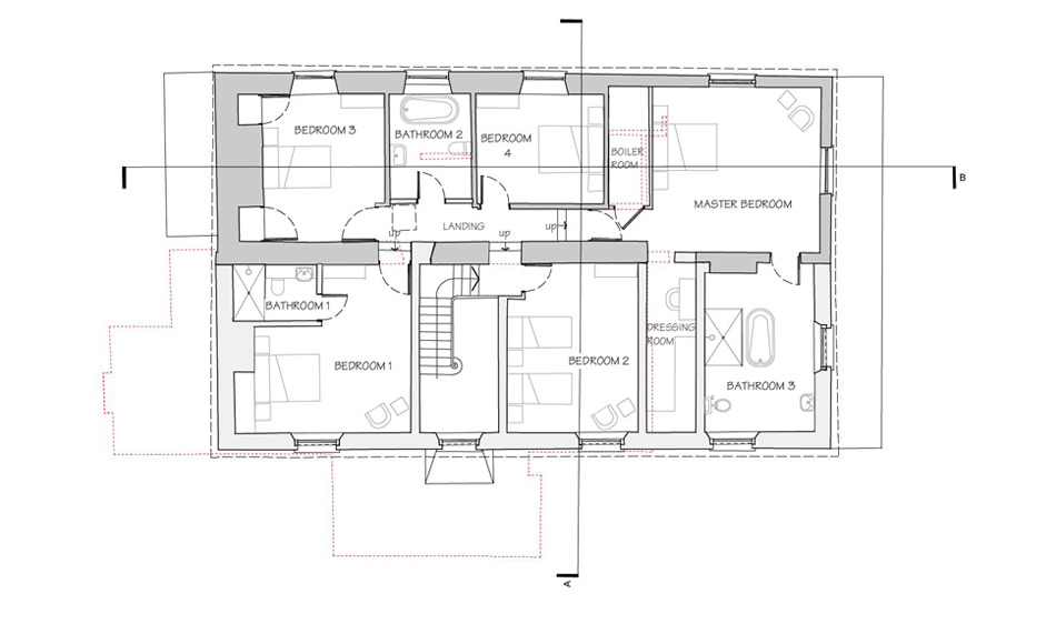
                         Proposed first floor plan – ensuite bathrooms, new double bedrooms, double height hall
 
                       
                         Proposed front elevation – original front elevation kept and remodelled with sliding sash windows
 
                       
                         Proposed side elevation showing extension with new entrance porch and matching detailing
The proposed extension is after demolition of the single storey element of the property
 
                  
                  
               At the end of October we blogged about our plans for the renewal of a Dartmoor farmhouse with a ‘gentrified’ classical elevation, and we are delighted to announce that the project has been given the green light by the Dartmoor National Park Authority.
The house will be transformed following Dartmoor’s extensions policies, from a haphazardly laid out bottom-heavy property to a well-balanced family home in proportion to the scale of the plot and the landscape it sits within. By replacing an existing rambling one storey extension the plans improve the balance of the house with a Georgian style elevation. The ground floor will house an open plan kitchen/living/dining space with a separate drawing room and play room, and the addition of the second floor extension will create a further two bedrooms as well as a master ensuite bathroom creating an elegant five bedroom home.
The new extension will use similar materials to the existing building with rendered walls and slate roofs, and windows will be matched throughout with new timber sash windows installed in the extension and the main house, giving the house a classical look. Internally the house will have modern interior design and kitchen with crittall windows and doors. Other fixtures and fittings will include a mix of traditional and modern bathrooms as well as a sensitive scheme of works to celebrate the best traditional details and modernise.
The clients are delighted that following close consultation with Jonathan Rhind Architects, the Dartmoor National Parks Authority have given the project the go ahead, and are looking forward to getting the project out to tender and work starting on site later in the year.
If you are considering works to your Dartmoor property, please get in touch to see how we can help.
