
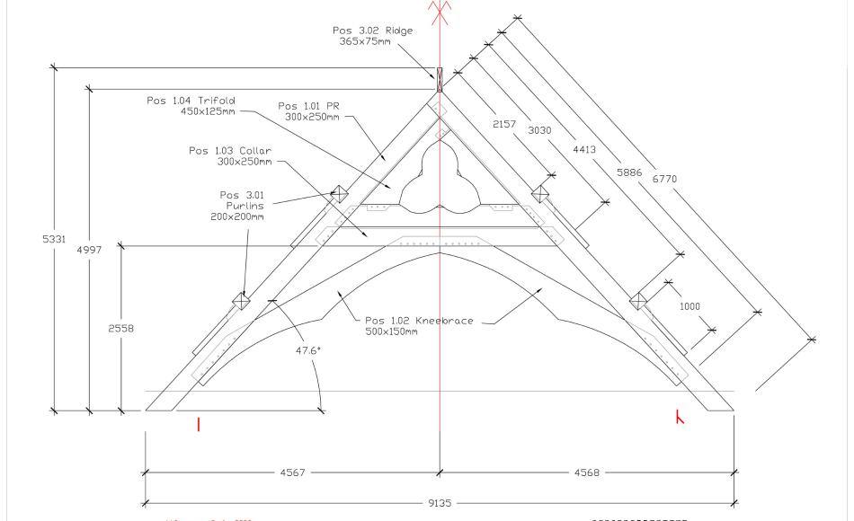
Work is still progressing well at this Somerset Manor house refurbishment and extension in spite of a number of supply issues caused by Covid 19 lockdown. In particular, the specialist contractor making the oak trusses for the new pool house has had problems in obtaining oak from France.
Julian Clayton, lead Architect and project manager said, “you have to be quick off the mark to avoid delays when suppliers let you down”.
At Westleigh, we have managed to avoid delays by keeping in close contact with the main contractor Oakleaf, and through good communication and a flexible approach we have revised the programme to work round the critical paths and arranged for the subcontractor to build the new trusses on site rather than in a factory. This will allow an earlier start on site as the trusses can be installed when they are completed rather than receiving them all at once.
Oakleaf’s latest video, gives a great view of a working building site and the team in action working on the Manor house extension, alterations and pool house in the foothills of the Quantocks in Somerset. Watch this space to see the completed refurbishment works.