From disused mechanics garage to loft-style living
— 11 Dec 2023




The property before the works with metal sheet roofing

Following conversion. The roof has been replaced with clay tiles.

Before and after the conversion
The client wanted to keep the sense of space with the conversion

Exposed brickwork with modern finishes maintains the balance between historic and contemporary

More intimate spaces counterbalance the open plan living area

Jonathan Rhind Architects helped the client realise his vision of creating a loft-style residence, with airy open-plan living spaces in this disused mechanics garage, desperately in need of some TLC. Located in a predominately residential area, it was an ideal candidate for change of use to convert it to a quirky home. Jonathan Rhind Architects gained permission to amend the plans to meet the needs of the client better while also reducing the intensity of the development and maintaining the property’s industrial aesthetic. Once the relevant permissions were in place, Jonathan Rhind Architects arranged surveys, tendered and appointed contractors, drew up technical designs and administered the contract on site.
The property is in a conservation area and was originally a traditional thatched cottage before it was converted to a garage in the 20th Century. Jonathan Rhind Architects worked closely with the planning office to achieve a sensitive exterior design which maintains the historic frontage while creating a more contemporary look for the rear of the building. This pleasing tension between old and new continues inside where the finishes were carefully selected to create a contemporary feel in contrast to the historic fabric of the building, retained in the stone and brickwork, and the addition of exposed steels linking the building to its industrial past.
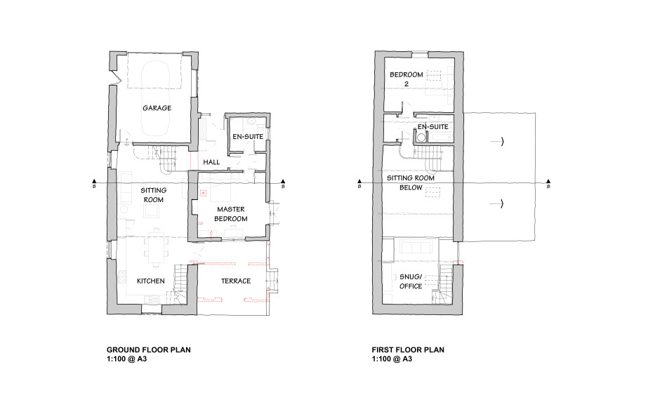
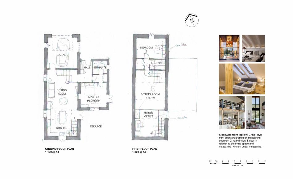
The large open spaces of the working garage inspired the design of the conversion, with its open plan living areas creating loft style space, while the bedrooms are more intimate. The property has a generous amount of space while the footprint of the original garage has not been increased, with the mezzanine creating extra living areas without compromising on space and light.
An air source heat pump provides sustainable heating for the property, while high levels of insulation and double glazing were incorporated into the historic building to reduce heat loss. The client is delighted with his new home, and we are pleased to have been able to help him realise his ambitions for the property.
If you are considering a change of use application and would like to discuss it further, please get in touch.