Former cattle barn to become 5 bedroom family home
— 19 Sep 2018

Class Q regulations have meant the client can take advantage of the stunning location

Cross sections showing the mezzanine floor over the main living space

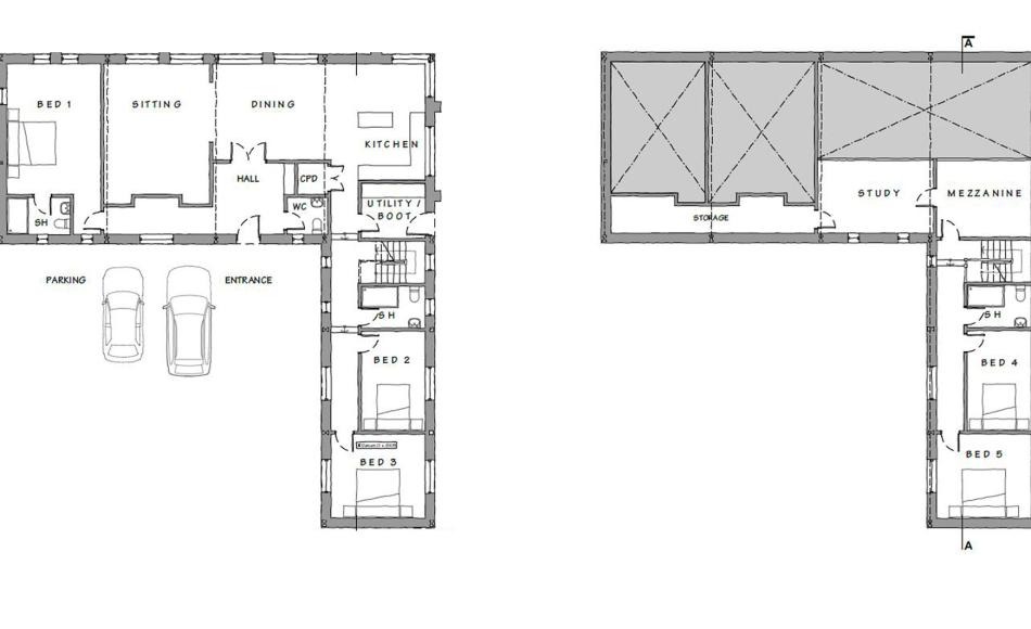
Proposed floor plans for the Class Q barn conversion
Jonathan Rhind Architects are delighted to have received planning approval under Class Q regulations to convert a redundant modern cattle barn in north Devon into a family home.
The barn which lies on the outskirts of the pretty town of Chumleigh close to the Taw Valley has fantastic views across the countryside towards Dartmoor.
The designs allow for the conversion of a single storey cattle barn with a two storey bedroom element to the rear identifying the strongest sections of an existing barn and making the most of stunning views. The end result will provide an effective and interesting house from a very awkward building to convert.
The existing structural frame of the main cattle barn is to be retained in its entirety, along with the concrete ground bearing slab, whilst the exterior will incorporate metal cladding and rendered blockwork in line with the existing materials. New dark grey metal framed doubled glazed windows and doors will accentuate a modern aesthetic.
A solar panel array will be added to the south-facing roof covering, and highly efficient thermal insulation in the floors, walls and roof will improve the sustainability and energy efficiency of the development.
Jonathan Rhind, Architect and Director, who is leading the project said ‘Class Q legislation has allowed for homes to be created in stunning rural locations, which would not normally receive planning permission. Agricultural barns, such as this one, can be converted to create beautiful open plan living spaces, and we are looking forward to working with the purchasers to create their ideal family home.’
The barn is currently on the market. To find out more about Class Q permitted development orders please see our recent technical blog.