
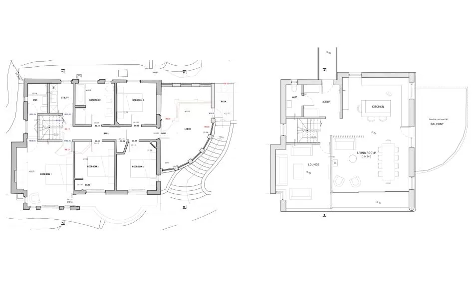
The bungalow was built in the post war building boom probably in the late 1940s, and sits on a steeply sloping site. The proposals seek to enlarge the property, maintaining the current footprint and opening up the current pitched roof into a second storey without lifting the current ridge line. This will transform the property to include a significant amount of extra space for the family, without any loss of the surrounding biodiverse landscape or impact on the skyline and views from the neighbouring properties. This approach lead to a swift and positive planning outcome for the client, and the designs have been approved by the local authority.
The new layout will create bright open plan living accommodation on the first floor, with expansive glazing maximising the scenic views and celebrating the coastal location. A spacious outdoor deck extends the entertaining space, while a stylish covered balcony, provides solar gains, with shading from the high summer sun, while framing key views.
Externally the additional first floor space and balcony are designed to seamlessly integrate with the house’s primary architectural features, maintaining the rhythm of the façade while enhancing its overall harmony. Standing seam metal cladding will be low maintenance while creating a bold contemporary form, an established aesthetic on the Cornish coast and in keeping with neighbouring properties.
The extended and updated property will have modern flexible living spaces, while preserving the distinctive character of the building with an architecturally complementary aesthetic.
Please get in touch if you would like to discuss updating your property.