Fallback position for Class Q allows for sustainability measures
— 24 Jun 2025


The winged barn already had class q permission, but the fallback position enabled the addition of 30KW of PV panels to the project

Designs retain the original agricultural style of the barn

The glazing will allow for sweeping views across the valley


Concrete laying for the slab

Concrete slab ready for timber frame






Nestled at the end of a track, in the heart of the bucolic Devon countryside, the Winged Barn forms part of an agricultural estate which dates from the 17th Century. Centred around a Grade II listed farmhouse, the estate consists of a charming assortment of traditional and modern agricultural buildings, nestled in a mixture of open pasture, ancient woodland and established orchards.
Our client wants to bring life back to the estate, which has fallen into disrepair, by diversifying, rewilding and introducing sustainable and energy efficient services; creating new uses for the agricultural buildings to secure the estate’s long-term future.
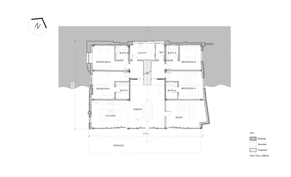
Class Q permission was granted on the Winged Barn to create a four bedroom home. However, by submitting a fallback position application, Jonathan Rhind Architects, were able to redesign the roof to incorporate photovoltaic panels (PV). The 30KW of panels span the entire roof from gutter to pitch, creating a sleek glass and aluminium covering to produce enough sustainable low carbon energy to power the barn and contribute significantly to the running of the rest of the estate.
The Winged barn as the name suggests is a central barn area with two ‘wings’ on either side. The designs for the conversion retain the form of the barn, incorporating the existing timber frame, with vertical timber cladding and large expanses of glazing to take advantage of the sweeping views across the valley. This retains the open sided, timber clad agricultural style of the current building, while updating the building, with high levels of insulation and the comforts of a modern home.
Works are well underway, and it won’t be long before the barn is in use as part of this low carbon estate.
For more information about class q and the fallback position, please get in touch to speak with one of our Architects.