Conservation Architects resolve tricky planning issue
— 29 Jan 2024

The new designs open up views of the historic barn

The historic threshing barn is currently concealed behind unused modern sheds

Sketch designs

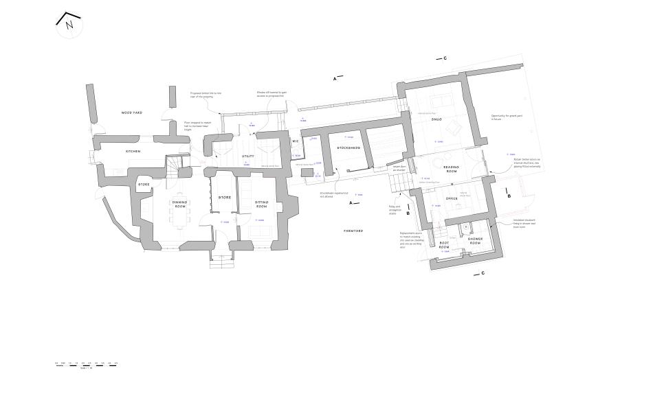
The approved plans see the principal rooms in the farmhouse, with ancillary accommodation in the threshing barn

The proposals include repairing the nineteenth century stocksheds which have fallen into disrepair


Proposed elevations show the relationship between the grade II listed farmhouse, nineteenth century stocksheds, new link and the converted threshing barn

Our clients are celebrating after Jonathan Rhind Architects achieved planning permission to extend the living accommodation of a grade II listed five bedroom farmhouse, by converting an adjacent historic threshing barn to create more living space. The clients approached Jonathan Rhind Architects after their previous architects recommended us to achieve planning consent.
The Farmhouse is one of a cluster of buildings forming a farmyard which Keystone Historic Building Consultants describe as significant for its authentic historic layout. The farmhouse is thought to date from c.1700, while the large threshing barn dates from the 17th/18th Century. Nineteenth Century stocksheds link the two buildings externally.
The living spaces in the five bedroom farmhouse were inadequate for family living, while the threshing barn was degrading and in danger of being lost. The clients approached Jonathan Rhind Architects because they needed an architect who understood the need to conserve the historic barns, whilst also improving the living spaces.
An already complex planning situation was exacerbated by a change in conservation officers during the planning process; and late consultation with the Society for the Protection of Ancient Buildings (SPAB). Jonathan Rhind Architects approached the planning situation from a conservation perspective, and negotiated the tricky line between conservation and upgrading and improving the living spaces.
Several designs were considered including an open plan kitchen dining area in the threshing barn, utilising the stocks sheds to link the two living spaces. However, the conservation officer felt it was important to maintain the hierarchy of the buildings and the internal layout of the stock sheds. To overcome this concern, Jonathan Rhind Architects proposed a large kitchen, dining and sitting rooms in the farmhouse and a snug, office and reading area in the threshing barn, with a new simple link to join the two living spaces along the rear of the stock sheds.
Unused modern sheds, will be removed, which will restore views of the historic threshing barn. To retain the historic aesthetic of the barn, original doorways will be retained and glazed as windows, and the doors utilised as shutters. The design of the new link is simple, rhythmic and sympathetic, with a glazed timber post oak frame on a stone base, and a slate roof.
With planning permission in place the clients are able to create their dream family home, while securing the future of the historic barns in their care.