Search the website
1307 Architects conversion southwest external v2

Mechanic's Garage

The disused mechanic’s garage in a conservation area was converted to an airy loft-style residence. Jonathan Rhind Architects worked closely with the planning office to gain planning permission, before arranging surveys, tendering and appointing contractors, drawing up technical designs and administering the contract on site.

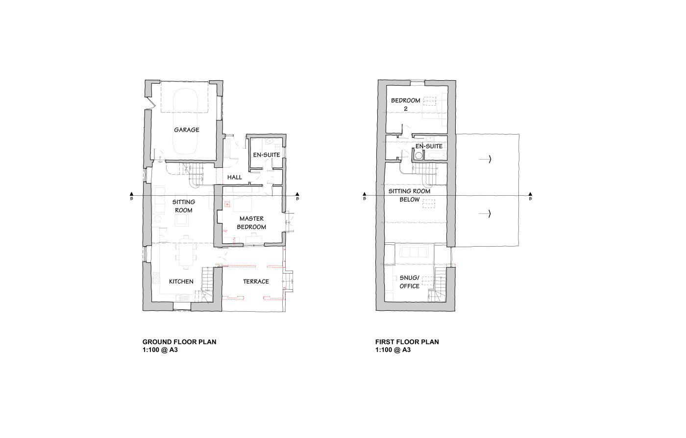
The designs create a pleasing tension between old and new with contemporary finishes in contrast to the historic industrial aesthetic of the building fabric. The footprint of the garage has not been increased, but there are generous living spaces with the mezzanine creating extra living areas without compromising on space and light.

The property is in a conservation area and was originally a traditional thatched cottage before it was converted to a garage in the 20th Century.

The large open spaces of the working garage inspired the design of the conversion, with its open plan living areas and more intimate bedrooms. The property has a generous amount of space while the footprint of the original garage has not been increased, with the mezzanine creating extra living areas without compromising on space and light.

An air source heat pump provides sustainable heating for the property, while high levels of insulation and double glazing were incorporated into the historic building to reduce heat loss.

 

1307 Architects conversion southwest external v2

1307 Architects conversion southwest before external

1307 Architects conversion southwest before

1307 Architects conversion southwest elevations v2

1307 Architects conversion southwest plans 2 v2

1307 Architects conversion southwest 2

1307 Architects conversion southwest 1

1307 Architects conversion southwest contemporary

Scroll up