Search the website
1262 historic cottage extension

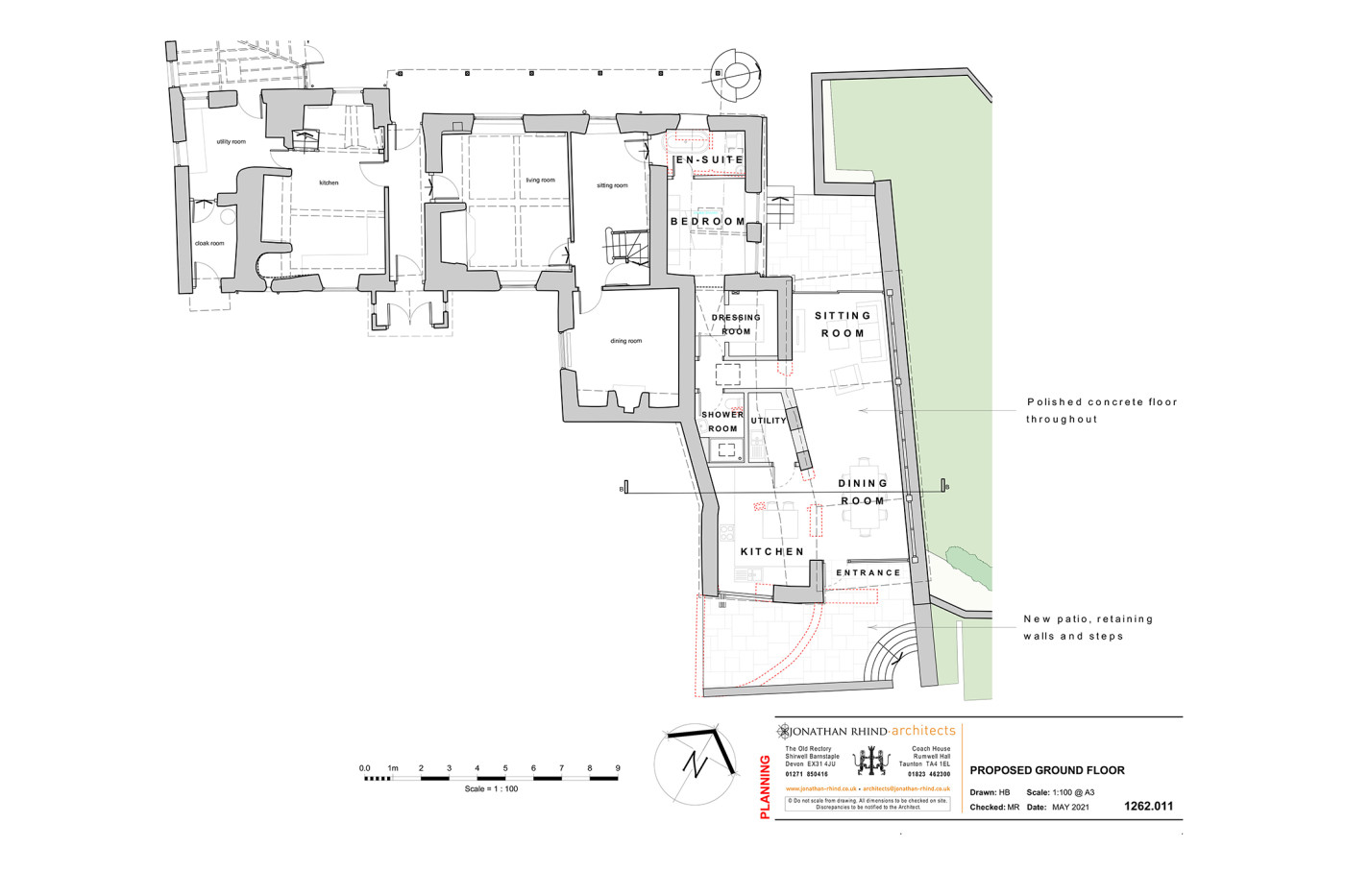
Historic Cottage

Historic cottage in the foothills of the Quantock Hills Area of Outstanding Natural Beauty (AONB), near Taunton, Somerset with origins from the 16th Century and enlargements and alterations in the 17th, 19th and 20th Centuries.

Jonathan Rhind Architects developed concept designs, gained planning permission and listed building consents, drew up a technical package and gained building regulations approval for an extension to the Grade II listed property for the family to grow into.

The client needed to increase the living space to accommodate a one bedroom annex. Jonathan Rhind Architects undertook consultation and negotiation with the planning and conservation office to achieve an acceptable scheme in this very sensitive context.

A single storey extension which was subservient to the current house and sensitive to the significance of the historic property was supported by the Conservation Officer. The design is a ‘plane wing’ structure floating in a space between retaining walls and some ramshackle outbuildings. The resulting space is a light and airy living space with views of trees and gardens on all sides. The historic storage sheds were then used for utility and bathroom spaces and the previous office as a bedroom.

The extension sits comfortably between the historic cottage and the garden – a legibly modern addition to the historic phases of the house – contributing to the historic development of the property whilst also being sympathetic to the landscape and neighbouring buildings.

 

1262 historic cottage extension

1262 historic cottage extension 6

1262 historic cottage extension 8

1262 historic cottage extension 5

1262 historic cottage extension 7

1262 historic cottage extension 4

1262 historic cottage extension plan

1262 historic cottage extension sketch view

Scroll up