Skip to main content

The Globe Torrington

1311 Architects Grade II listed renovation Devon hero (Custom)

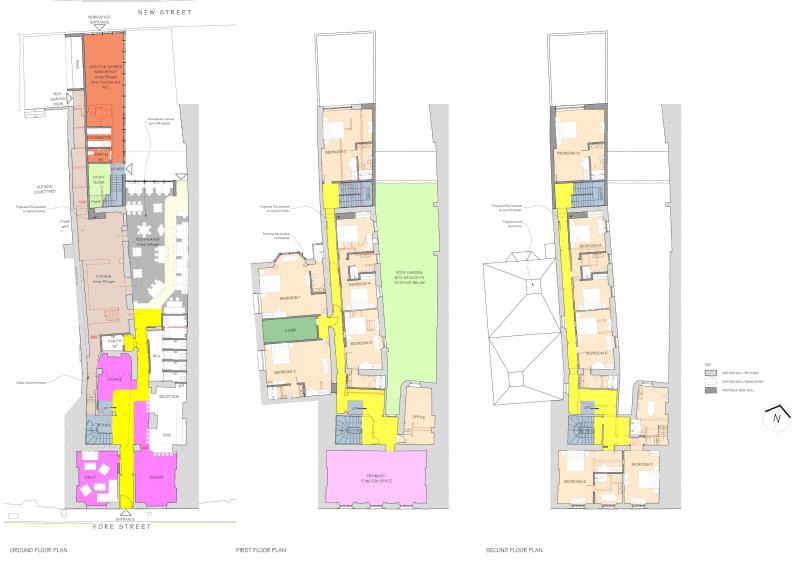
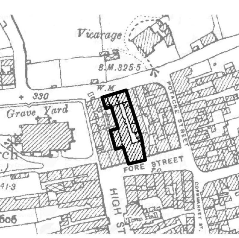
An exciting partnership between Torridge District Council (TDC), Great Torrington Town Council, The Plough Arts Centre and Petroc is set to rejuvenate the Globe Hotel in the heart of Torrington town centre. Since it closed, the Grade II listed building has been sitting empty, however, the project team have acquired funding from the Architectural Heritage Fund to put plans in place to rejuvenate the property and create a working training hotel. Jonathan Rhind Architects were delighted to be appointed Architects by the team and developed concept plans for this innovative project. 

The hope is that the regeneration of this Grade II listed building will not only secure the long term future of the property but will also be a catalyst for regeneration throughout Torrington. The revitalised building will become a community hub, training centre and tourist accommodation, with shared work spaces and room for the Plough Arts Centre to grow into, and should set the precedent that will trigger wider community led regeneration in the future. 

Jonny Poland, Conservation Architect and Director of Jonathan Rhind Architects said, ‘We are keen to understand the development of the Globe within the wider context of Great Torrington, how this building relates to the buildings and spaces around it; how the site and town centre have evolved over time; to understand the communal value and community’s connection to the place; and by identifying unique characteristics to guide the design development with the aim of building upon all that is special and unique about the place.’

The community are heavily involved in the project, with a pioneering scheme to enable community ownership of the hotel. The scheme will boost tourism to the town, create local jobs, provide training and qualifications, and stimulate economic and cultural growth.

Sector: Community

Start the conversation

Tell us about your project and we’ll explore how we can bring it to life.