Skip to main content

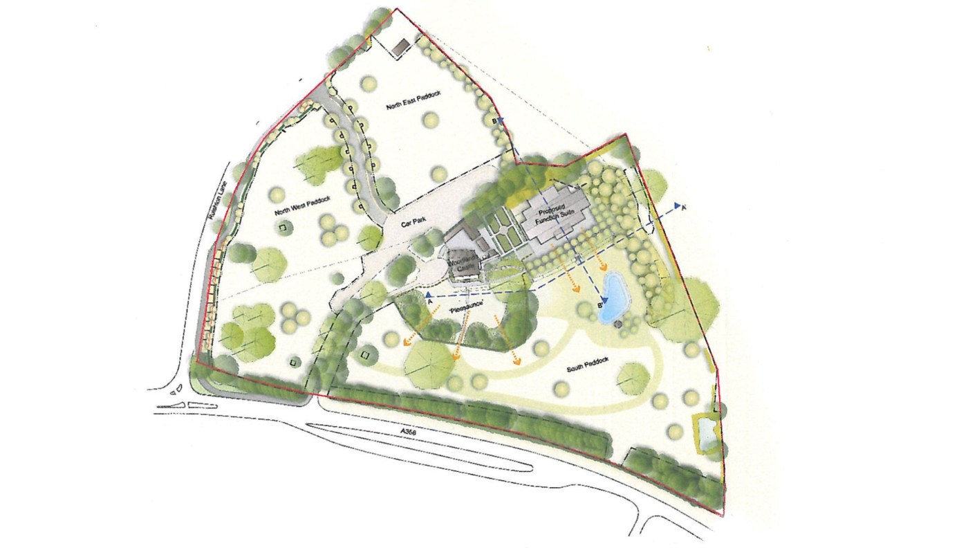
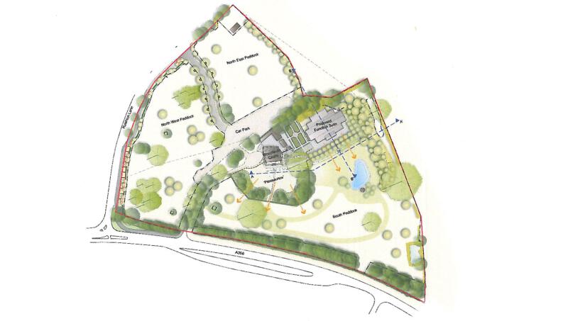
Woodlands Castle, Taunton

1 Large28

We gained planning and listed building consent for a difficult and controversial development of a new building to house conferences, functions, exhibitions and weddings, within the grounds of a Grade II listed house.

We undertook a historic assessment of the house and surrounding landscape and were able to propose an appropriate layout for the site and justification for development next to the listed building for a large, permanent function room, using existing buildings for WC’s and service areas and main house kitchens and providing disabled persons’ access and extended parking areas. Our designs integrate landscaping into the wider park. Also a temporary five year consent for re-siting of the existing marquee where the main building could be built.

Sector: Commercial

Start the conversation

Tell us about your project and we’ll explore how we can bring it to life.