Search the website
1277 Class Q barn conversion architects Devon 3

Pole barn Class Q conversion

The Pole barn opens out onto a wildflower meadow reaching down to the river. The clients wanted to take advantage of the beautiful setting to create a peaceful home in a glorious countryside setting.

The open-fronted barn is constructed of a timber frame clad in corrugated steel.

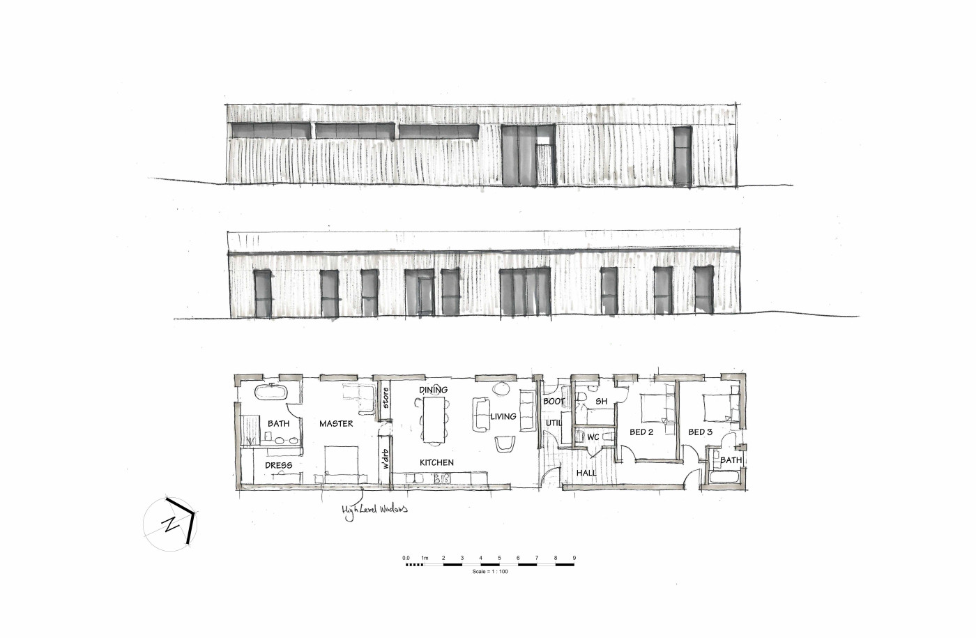
Jonathan Rhind Architects designed a concept for Class Q conversion to a dwelling house.

The layout takes advantage of the original bays of the barn, to create the living and sleeping spaces, and opens up the west aspect so the main rooms have views and access out to the meadow down to the water. The accommodation extends to three ensuite bedrooms including a master suite with dressing room and an open plan sitting room / kitchen / diner, as well as a study, snug and utility room.

Creating clerestory windows on the east elevation allows morning sunlight to flood into the living / kitchen space.

The clients’ brief was for the building to be a low energy build as well as low energy to run. The designs included for minimalist building to reduce the use of new materials, and use of thermal insulation on the floor, walls and ceiling to reduce energy demands. A green roof and Passivhaus standards were also explored.

1277 Class Q barn conversion architects Devon 3

1277 Class Q barn conversion architects Devon 6

1277 Class Q barn conversion architects Devon 8

1277 Class Q barn conversion architects Devon 7

1277 Class Q barn conversion architects Devon 10

1277 Class Q barn conversion architects Devon 2 v2

1277 Class Q barn conversion architects Devon 1

1277 Class Q barn conversion architects Devon 4

1277 Class Q barn conversion architects Devon 5

Scroll up